Сертификация
КИТАЙ DONGGUAN DAXIAN INSTRUMENT EQUIPMENT CO.,LTD Сертификаты
КИТАЙ DONGGUAN DAXIAN INSTRUMENT EQUIPMENT CO.,LTD Сертификаты
Просмотрения клиента
Прежде чем я покупаю машину, я вижу, что наш партнер использует вашу машину, после получаю его, все хорош. большое спасибо, надежда делают делом следующее время тоже.

—— Макс будет

Беспокойство в начале и около если ваша компания может доставка во времени, то, она поворачивает вне вашу компанию хороша, никакая задержка, сотрудничество а приятное.

—— Питер Хуанг

Славное сотрудничество! Мы оценили для поддержки вашей компании добросердечной на наших проектах. Очень хорошее обслуживание.

—— Г-н Хуссайн

Профессиональная цитата, профессиональная технология, так, что мы получим своевременные товары, благонадежные предприятия. Надежда мы можем все еще объединить следующее время!

—— Г-н Пол Гарры

Оставьте нам сообщение

UL181 Fire Flame Penetration Test Apparatus Lab Testing Machine

UL181 Fire Flame Penetration Test Apparatus Lab Testing Machine
UL181 Fire Flame Penetration Test Apparatus Lab Testing Machine UL181 Fire Flame Penetration Test Apparatus Lab Testing Machine UL181 Fire Flame Penetration Test Apparatus Lab Testing Machine

Большие изображения :  UL181 Fire Flame Penetration Test Apparatus Lab Testing Machine

Подробная информация о продукте:
Место происхождения: КИТАЙ
Фирменное наименование: DAXIAN
Сертификация: UL181
Номер модели: DX8617
Оплата и доставка Условия:
Количество мин заказа: один набор
Цена: Подлежит обсуждению
Упаковывая детали: Деревянный корпус
Время доставки: 15 рабочих дней
Условия оплаты: L/C, D/A, D/P, T/T, Western Union, Moneygram, наличными
Поставка способности: 15 комплектов в месяц

UL181 Fire Flame Penetration Test Apparatus Lab Testing Machine

описание
Имя: Ul181 Стандартный: UL181
Питание для снабжения: 220В Heat flow meter-Design range: 0
Интенсивные: 2 Гарантия: 12 месяцев
Размер: 1 Масса: 3
Выделить:

UL181 fire penetration test machine

,

flame penetration lab testing apparatus

,

UL181 lab testing machine with warranty

UL181 Fire Flame Penetration Test Apparatus Lab Testing Machine
 
1.Introduction  
 
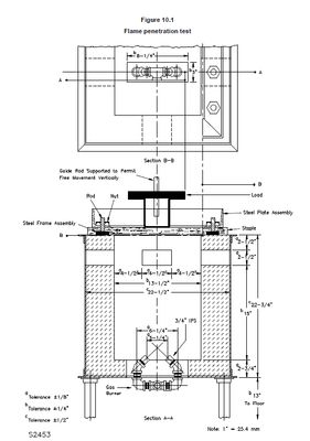
Flame-penetration tests are to be conducted using a refractory-lined gas-fired combustion chamber open at the top.
 
2. Standard:
 
UL181.
 
3. Test Method:
 
3.1 At the end of the pre-heat and stabilization period, the calcium silicate board is to be removed andthe air duct test sample substituted in its place within 10 seconds with the sample oriented such that thecore wires are parallel to the bumers. The test sample is to be subiected during the test to a static loadlocated at the geometnic center and rotated to any position determined to be most critical for penetration on the upper surace of that part of the sample exposed to the flame. See Fiqure 10.3. The static load is tobe gently lowered onto the test sample 3 to 5 seconds after the test sample is in place.
3.2 The gas input to the furmace is not to be disturbed during this changeover and any subsequenttest period.
3.3 The test is to be continued for a period of 30 minutes. The test period is to be measured from thetime the static load is applied to the test sample.
UL181 Fire Flame Penetration Test Apparatus Lab Testing Machine 0
UL181 Fire Flame Penetration Test Apparatus Lab Testing Machine 1
 
 

 
 

Welcome to visit our factory for sightseeing!

 

Supplier Company Name Daxian Instrument Equipment CO.,Limited
Company Address Changlian Industrial Building, 168 Zhenan West Road, Xiabian Community, Chang'an Town, Dongguan, Guang Dong, China
Contact Person Sophia Su
Tel/ Whatsapp 86-15024082385
Email Daxian02@jiance17.cn

 

UL181 Fire Flame Penetration Test Apparatus Lab Testing Machine 2

 


 

Контактная информация
DONGGUAN DAXIAN INSTRUMENT EQUIPMENT CO.,LTD

Контактное лицо: Sophia Su

Телефон: +86-13266221899

Оставьте вашу заявку (0 / 3000)

Другие продукты